Appartamento all'Asta a San Polo d'Enza (RE)

San Polo d'Enza - Appartamento in vendita
58.500 €
Caratteristiche principali
108,55 m²
Superficie
6,5
Locali
3
Camere
2
Bagni
1
Box auto
Descrizione
Licenza ai sensi ex art. 115 TULPS rilasciata dalla Questura di Alessandria in data 22/06/2022

Asteadvisor propone * :

LOTTO UNICO: Riferimento RE56/2025 - DATA ASTA: 23/04/2026 - ore 15:30
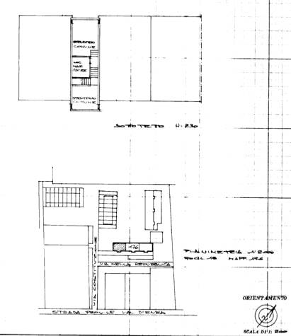
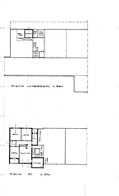
San Polo d'Enza (RE) - Via della Repubblica 1

Appartamento con annesse cantina e autorimessa, in fabbricato condominiale dotato di ascensore.
L'appartamento posto al secondo piano è composto da un soggiorno, una cucina, un disimpegno di collegamento con la zona notte formata da due servizi igienici finestrati ed uno servito da un piccolo balcone, e tre camere da letto di cui due matrimoniali ed una singola dotata di balcone.
L’ampia autorimessa può comodamente contenere un'auto.

Valore commerciale da stima: Euro 108.314
Base D'Asta: Euro 78.000
Offerta Minima in asta: Euro 58.500
Rilancio minimo in asta: Euro 2.000

Le foto pubblicate potrebbero non corrispondere all'immobile specifico, ma solo all'identificazione della zona; l'esattezza di tutti i dati pubblicati sarà confermata in sede di consulenza.

Acquista in asta giudiziaria con la massima tranquillità e trasparenza, affidandoti a professionisti del settore, ti offriremo un servizio All-inclusive chiavi in mano.

* Annuncio finalizzato alla vendita del servizio di consulenza ed assistenza legale, gratuito in caso di mancata aggiudicazione dell' Asta Immobiliare!
Trattasi di vendita pubblica alla quale è possibile partecipare personalmente o tramite il nostro Avvocato.

Contattaci subito per ricevere informazioni e per prenotare la visita all'immobile!

VISITA IL NOSTRO SITO: asteadvisor.com
SEGUICI SU FACEBOOK: Asteadvisor
SEGUICI SU INSTAGRAM: Asteadvisor Group
SEGUICI SU YOUTUBE: @lucacavanna9526
Caratteristiche
Codice:
RE56/2025
Città:
San Polo d'Enza
Categoria:
Appartamento
Locali:
6,5
Camere:
3
Bagni:
2
Mq:
108,55
Box auto:
1
Balconi:
2
Mq Balcone:
6,92
Piano:
2
Anno:
1981
Classe energetica:
G
Stato Immobile:
Buono
Grado:
Medio
Posizione:
Periferia
Panorama:
Vista Aperta
Lati Liberi:
2
Giardino:
No
Arredi:
Non Arredato
Tipo Soggiorno:
Soggiorno
Tipo Cucina:
Abitabile
Riscaldamento:
Autonomo
Tipo Riscaldam.:
Caldaia
Tipo Impianto:
Radiatori
Fonte Energetica:
Metano
Acqua Calda:
Autonoma
Accessori
Ascensore
Doppi Vetri
Planimetrie
Mappa
Via della Repubblica, 1 - San Polo d'Enza (RE)
Cookie preference